Quadrilocale in vendita

Sant'Omero, Via Pignotti - Case Alte
€ 75.000
6 locali 6 locali
86 Mq 86 Mq
3 bagni 3 bagni

Quadrilocale in vendita

Sant'Omero, Via Pignotti - Case Alte

Descrizione annuncio

Per acquistare questo immobile devi vendere il tuo? Chiamaci per una valutazione gratuita.

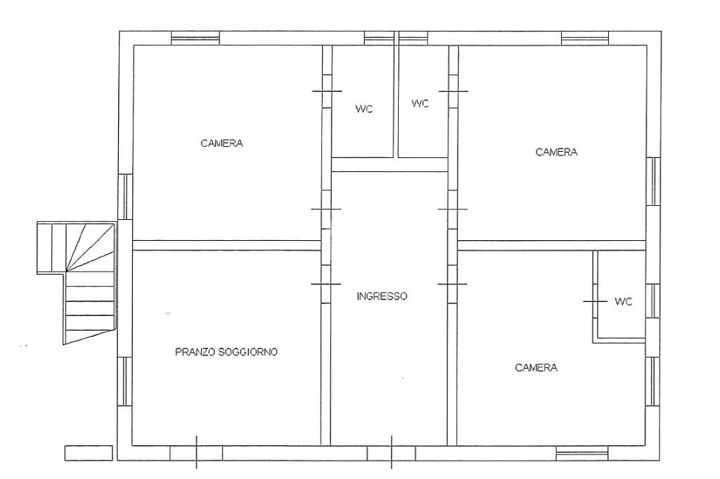
A Sant'Omero Zona Salino in un contesto tranquillo, a pochi minuti dai principali servizi e dalle località della Val Vibrata proponiamo in vendita un affascinante appartamento di 86 mq situato al piano terra, caratterizzato da ambienti accoglienti e ben distribuiti.

L’immobile, originariamente pensato come B&B, offre spazi funzionali e versatili: una cucina abitabile e tre camere da letto, ciascuna con bagno privato, ideali per garantire comfort e privacy.

La proprietà include anche un posto auto riservato, assicurando comodità e facilità di accesso.

La soluzione è perfetta sia per chi cerca una residenza spaziosa e indipendente, sia per chi desidera investire in un’attività ricettiva già pronta per essere avviata.

Contattaci per maggiori informazioni o per prenotare una visita!

Presso la nostra agenzia è possibile inoltre, grazie alla consulenza del credito Kiron, accedere a servizi e prodotti come:
- Mutui acquisto prima o seconda casa
- Mutui ristrutturazione
- Sostituzione del mutuo attuale con uno a
condizioni più vantaggiose.

Per maggiori dettagli o per fissare un appuntamento per una visita gratuita, non esitate a contattarci.

Seguiteci su Facebook Agenzia Tecnorete Giulianova, su Instagram Tecnorete Giulianova

Mostra tutto

Nelle vicinanze

Negozi Negozi
Top Shop - Taglie Forti Donna
2,7 Km
Ristoranti Ristoranti
Ristorante da Luigi
2,2 Km
La locanda della tradizione abruzzese
2,9 Km
Mostra tutto

Caratteristiche

Rif.:
61132337
Piano:
1 di 1 (Piano terra)
Posti auto:
1
Camere da letto:
3
Arredamento:
Parziale
Condizionamento:
Assente
Mostra tutto
Prezzo Prezzo
€ 75.000
Rata mutuo Rata mutuo
€ 356 / mese
Spese annue Spese annue
€ 0
Proponi il tuo prezzoProponi il tuo prezzo

Classe Energetica

G
G
G
G
G
G
G
G
G
EP globale non rinnovabile:
185.00 kW h/m² anno
EP globale rinnovabile:
185.00 kW h/m² anno
EP invernale del fabbricato:
EP estiva del fabbricato:
Anno di costruzione:
1900
Riscaldamento:
Autonomo
Tipo impianto:
A radiatori
Tipo alimentazione:
Metano

Ti interessa visionare l'immobile?

Fissa un appuntamento  Fissa un appuntamento

Richiedi informazioni

Clicca su Leggi per aprire l'informativa
* Questi campi sono obbligatori

Calcola il tuo mutuo

Semplice e senza impegno
Anticipo

( % )
Mutuo

( % )

pochi semplici passi

inserisci i tuoi dati
Questionario completato
Grazie per aver richiesto un appuntamento senza impegno con un nostro Consulente del Credito e Assicurativo.

Hai inserito correttamente tutti i dati necessari e a breve riceverai una e-mail con un link da convalidare per inviare i tuoi dati.
Affiliato
Studio Giulianova Srl
Lung. Zara, 47 64021 Giulianova (TE)

Il nostro staff


  • Simona Camplese
    Coordinatrice

  • Nicola Angelo Costa
    Affiliato

  • Daniel Morè
    Responsabile
Lung. Zara, 47 64021 Giulianova (TE)
Zona: Giulianova
Mostra su mappa
Orari: Dal lunedì al sabato 09:00 - 13:00 e 15:00 - 19:30. Domenica su appuntamento.
Affiliato
Studio Giulianova Srl
Lung. Zara, 47 64021 Giulianova (TE)

2026 Tecnocasa Franchising S.p.A. - P. IVA 08365160152 - Via Monte Bianco 60/A 20089 Rozzano (MI). Ogni agenzia ha un proprio titolare ed è autonoma. Privacy policy | Policy utilizzo | Cookie policy