Casa semindipendente in vendita

Giulianova, Via del Campetto - Giulianova Paese
€ 275.000
8 locali 8 locali
264 Mq 264 Mq
2 bagni 2 bagni

Casa semindipendente in vendita

Giulianova, Via del Campetto - Giulianova Paese

Descrizione annuncio

Per acquistare questo immobile devi vendere il tuo? Chiamaci per una valutazione gratuita.

Ampia Casa Indipendente nel Cuore di Giulianova Paese.


Proponiamo in vendita una spaziosa casa indipendente, una soluzione rara per chi cerca ampi volumi, totale autonomia e la comodità di vivere a pochi passi da tutti i principali servizi.

La proprietà si sviluppa su tre livelli ed è caratterizzata da una distribuzione funzionale degli ambienti, rendendola ideale per una famiglia numerosa o per due nuclei familiari che desiderano abitare nello stesso edificio mantenendo la propria privacy.


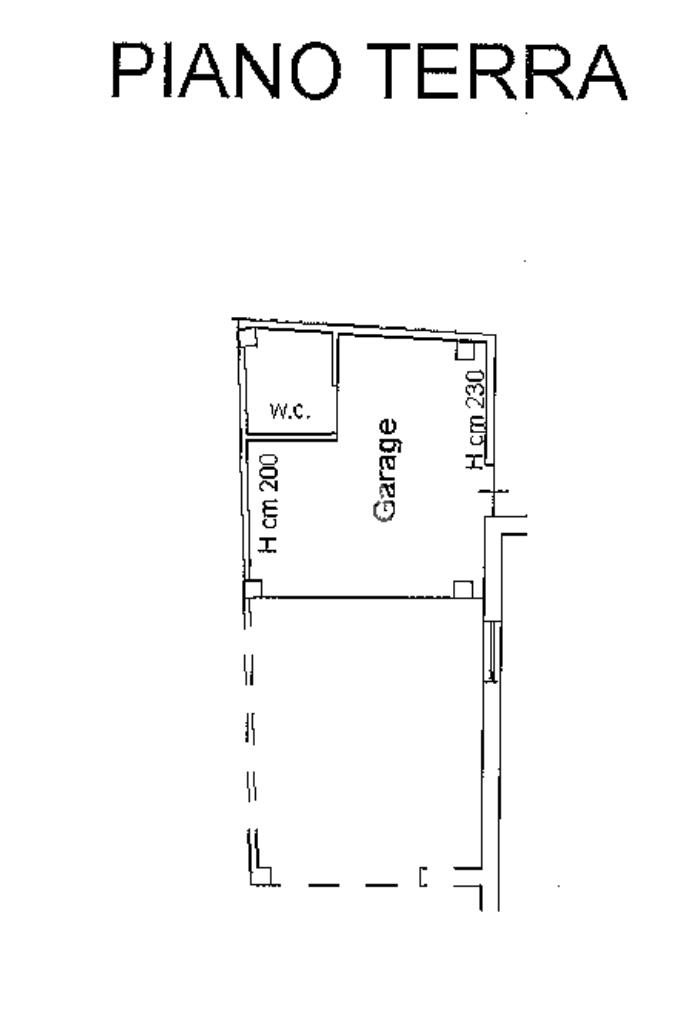
Il piano terra accoglie un generoso locale di sgombero completo di bagno, uno spazio versatile che può essere facilmente adattato a taverna o zona di servizio a seconda delle necessità.

Al primo piano troviamo la prima unità abitativa, composta da un ampio soggiorno luminoso, una sala da pranzo separata con cucina abitabile e accesso diretto al balcone. Un comodo disimpegno conduce alla zona notte, dove trovano spazio due grandi camere matrimoniali e un bagno finestrato.


L’ultimo piano ospita un secondo appartamento ancora più spazioso, perfetto per accogliere una famiglia. La zona giorno è composta da un ampio salone e una cucina abitabile, entrambi con accesso ai balconi, mentre il corridoio porta a tre camere da letto, di cui due matrimoniali e una singola, oltre a un secondo bagno finestrato.

Comodo garage e giardino privato che circonda l'intera abitazione.

Grazie alla sua metratura e alla posizione strategica, questa casa rappresenta un'opportunità unica per chi desidera personalizzare la propria dimora in un contesto residenziale tranquillo, accogliente e senza alcuna spesa condominiale.

Contattaci per fissare una visita e lasciati conquistare da questa proposta.

Presso la nostra agenzia è possibile inoltre, grazie alla consulenza del credito Kiron, accedere a servizi e prodotti come:
- Mutui acquisto prima o seconda casa
- Mutui ristrutturazione
- Sostituzione del mutuo attuale con uno a
condizioni più vantaggiose.

Per maggiori dettagli o per fissare un appuntamento per una visita gratuita, non esitate a contattarci.

Seguiteci su Facebook Agenzia Tecnorete Giulianova, su Instagram tecnorete Giulianova

Mostra tutto

Nelle vicinanze

Trasporto pubblico Trasporto pubblico
stazione di Giulianova
stazione di Giulianova
1,2 Km
Trasporto pubblico
1,1 Km
Ricariche auto elettriche Ricariche auto elettriche
Hotel 900
1,2 Km
Scuole Scuole
Scuola Elementare "E. De Amicis"
490 m
Scuola Media V. Bindi
980 m
ITT "Vincenzo Cerulli"
1,3 Km
Scuole
1,8 Km
Farmacia Farmacia
Farmacia Del Leone - Valore Salute
670 m
Ospedali Ospedali
Ospedali
970 m
Ospedale Maria SS. dello Splendore
1,1 Km
Supermercati Supermercati
Si! Con Te
1,1 Km
Lidl
1,7 Km
Conad
2,0 Km
Supermercati
2,9 Km
Negozi Negozi
Dap Store Abbigliamento
1,3 Km
Globo
1,6 Km
Bar Bar
Caffé Marcozzi
580 m
Caffè dello Splendore
830 m
Las Vegas
1,3 Km
Hera Hora
1,3 Km
Iguana Café
1,4 Km
Ristoranti Ristoranti
Osteria Bracenova
510 m
Orologio
560 m
Ristorante Pizzeria Bellavista
610 m
Self Service Del Corso
1,4 Km
Sapori del Corso
1,4 Km
Mostra tutto

Caratteristiche

Rif.:
61189035
Piano:
1 di 2 (Piano su più livelli)
Box:
2
Balconi:
2
Camere da letto:
4
Arredamento:
Parziale
Mostra tutto
Prezzo Prezzo
€ 275.000
Rata mutuo Rata mutuo
€ 1.306 / mese
Proponi il tuo prezzoProponi il tuo prezzo
Immobile valutato con T·Valuta

Classe Energetica

G
G
G
G
G
G
G
G
G
EP globale non rinnovabile:
185.00 kW h/m² anno
EP globale rinnovabile:
185.00 kW h/m² anno
EP invernale del fabbricato:
EP estiva del fabbricato:
Anno di costruzione:
1980
Riscaldamento:
Autonomo
Tipo impianto:
A radiatori
Tipo alimentazione:
Metano

Ti interessa visionare l'immobile?

Fissa un appuntamento  Fissa un appuntamento

Richiedi informazioni

Clicca su Leggi per aprire l'informativa
* Questi campi sono obbligatori

Calcola il tuo mutuo

Semplice e senza impegno
Anticipo

( % )
Mutuo

( % )

pochi semplici passi

inserisci i tuoi dati
Questionario completato
Grazie per aver richiesto un appuntamento senza impegno con un nostro Consulente del Credito e Assicurativo.

Hai inserito correttamente tutti i dati necessari e a breve riceverai una e-mail con un link da convalidare per inviare i tuoi dati.
Affiliato
Studio Giulianova Srl
Lung. Zara, 47 64021 Giulianova (TE)

Il nostro staff


  • Simona Camplese
    Coordinatrice

  • Nicola Angelo Costa
    Affiliato

  • Daniel Morè
    Responsabile
Lung. Zara, 47 64021 Giulianova (TE)
Zona: Giulianova
Mostra su mappa
Orari: Dal lunedì al sabato 09:00 - 13:00 e 15:00 - 19:30. Domenica su appuntamento.
Affiliato
Studio Giulianova Srl
Lung. Zara, 47 64021 Giulianova (TE)

2026 Tecnocasa Franchising S.p.A. - P. IVA 08365160152 - Via Monte Bianco 60/A 20089 Rozzano (MI). Ogni agenzia ha un proprio titolare ed è autonoma. Privacy policy | Policy utilizzo | Cookie policy