Casa semindipendente in vendita

Giulianova, Via per Mosciano - Case Di Trento
€ 199.000
5 locali 5 locali
214 Mq 214 Mq
2 bagni 2 bagni

Casa semindipendente in vendita

Giulianova, Via per Mosciano - Case Di Trento

Descrizione annuncio

Nel cuore della tranquilla località di Case di Trento, nel comune di Giulianova Paese, è disponibile una casa semindipendente in vendita.

Con una superficie di 214 mq, questa proprietà offre ampi spazi per chi cerca una soluzione abitativa versatile. La categoria civile dell'immobile assicura un ambiente adatto a diverse esigenze abitative.

La posizione strategica permette di godere della tranquillità della zona, pur essendo a breve distanza dai principali servizi e collegamenti.

Questa casa rappresenta un'opportunità unica per chi desidera vivere in un contesto sereno, senza rinunciare alla comodità di una posizione centrale.

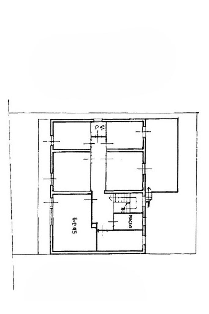
Al primo piano si sviluppa l’unità abitativa, caratterizzata da ambienti luminosi e ben distribuiti: due bagni, di cui uno finestrato con vasca, tre camere da letto matrimoniali di ampia metratura, con una stanza dotata di balcone privato, oltre a soggiorno separato e cucina.

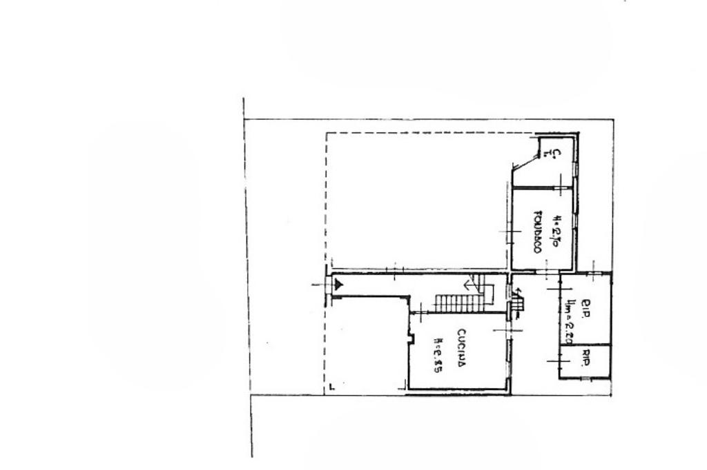
Al piano terra, invece, sono presenti i locali commerciali, perfetti per chi desidera coniugare vita privata e attività professionale o per chi cerca un investimento versatile in una delle zone più richieste di Giulianova Paese.

Una proposta completa, funzionale e ricca di potenzialità.

Contattaci per maggiori dettagli.

Mostra tutto

Nelle vicinanze

Trasporto pubblico Trasporto pubblico
stazione di Giulianova
stazione di Giulianova
1,2 Km
Trasporto pubblico
970 m
Ricariche auto elettriche Ricariche auto elettriche
Hotel 900
1,4 Km
Scuole Scuole
Scuola Elementare "E. De Amicis"
560 m
Scuola Media V. Bindi
1,1 Km
ITT "Vincenzo Cerulli"
1,2 Km
Scuole
1,8 Km
Farmacia Farmacia
Farmacia Del Leone - Valore Salute
680 m
Ospedali Ospedali
Ospedali
860 m
Ospedale Maria SS. dello Splendore
1,0 Km
Supermercati Supermercati
Si! Con Te
1,3 Km
Lidl
1,6 Km
Conad
1,9 Km
Supermercati
2,8 Km
Negozi Negozi
Dap Store Abbigliamento
1,4 Km
Globo
1,6 Km
Bar Bar
Caffé Marcozzi
650 m
Caffè dello Splendore
1,1 Km
Las Vegas
1,4 Km
Hera Hora
1,4 Km
Iguana Café
1,4 Km
Ristoranti Ristoranti
Osteria Bracenova
590 m
Orologio
630 m
Ristorante Pizzeria Bellavista
790 m
Self Service Del Corso
1,4 Km
Sapori del Corso
1,5 Km
Mostra tutto

Caratteristiche

Rif.:
61148558
Piano:
1 di 1 (Piano medio)
Balconi:
1
Terrazzi:
1
Camere da letto:
3
Arredamento:
Parziale
Mostra tutto
Prezzo Prezzo
€ 199.000
Rata mutuo Rata mutuo
€ 945 / mese
Spese annue Spese annue
€ 0
Proponi il tuo prezzoProponi il tuo prezzo

Classe Energetica

G
G
G
G
G
G
G
G
G
EP globale non rinnovabile:
185.00 kW h/m² anno
EP globale rinnovabile:
185.00 kW h/m² anno
EP invernale del fabbricato:
EP estiva del fabbricato:
Anno di costruzione:
1960
Riscaldamento:
Autonomo
Tipo impianto:
A radiatori
Tipo alimentazione:
Metano

Ti interessa visionare l'immobile?

Fissa un appuntamento  Fissa un appuntamento

Richiedi informazioni

Clicca su Leggi per aprire l'informativa
* Questi campi sono obbligatori

Calcola il tuo mutuo

Semplice e senza impegno
Anticipo

( % )
Mutuo

( % )

pochi semplici passi

inserisci i tuoi dati
Questionario completato
Grazie per aver richiesto un appuntamento senza impegno con un nostro Consulente del Credito e Assicurativo.

Hai inserito correttamente tutti i dati necessari e a breve riceverai una e-mail con un link da convalidare per inviare i tuoi dati.
Affiliato
Studio Giulianova Srl
Lung. Zara, 47 64021 Giulianova (TE)

Il nostro staff


  • Simona Camplese
    Coordinatrice

  • Nicola Angelo Costa
    Affiliato

  • Daniel Morè
    Responsabile
Lung. Zara, 47 64021 Giulianova (TE)
Zona: Giulianova
Mostra su mappa
Orari: Dal lunedì al sabato 09:00 - 13:00 e 15:00 - 19:30. Domenica su appuntamento.
Affiliato
Studio Giulianova Srl
Lung. Zara, 47 64021 Giulianova (TE)

2026 Tecnocasa Franchising S.p.A. - P. IVA 08365160152 - Via Monte Bianco 60/A 20089 Rozzano (MI). Ogni agenzia ha un proprio titolare ed è autonoma. Privacy policy | Policy utilizzo | Cookie policy