5 locali in vendita

Giulianova, Via R. Pagliacetti - Giulianova Paese
€ 279.000
5 locali 5 locali
155 Mq 155 Mq
2 bagni 2 bagni

5 locali in vendita

Giulianova, Via R. Pagliacetti - Giulianova Paese

Descrizione annuncio

Per acquistare questo immobile devi vendere il tuo? Chiamaci per una valutazione gratuita.

Dimora d'Epoca a Giulianova Paese: l'Incontro Perfetto tra Storia e Design Industrial.


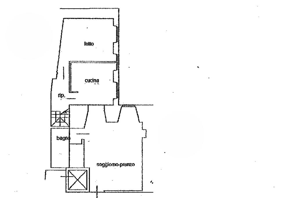
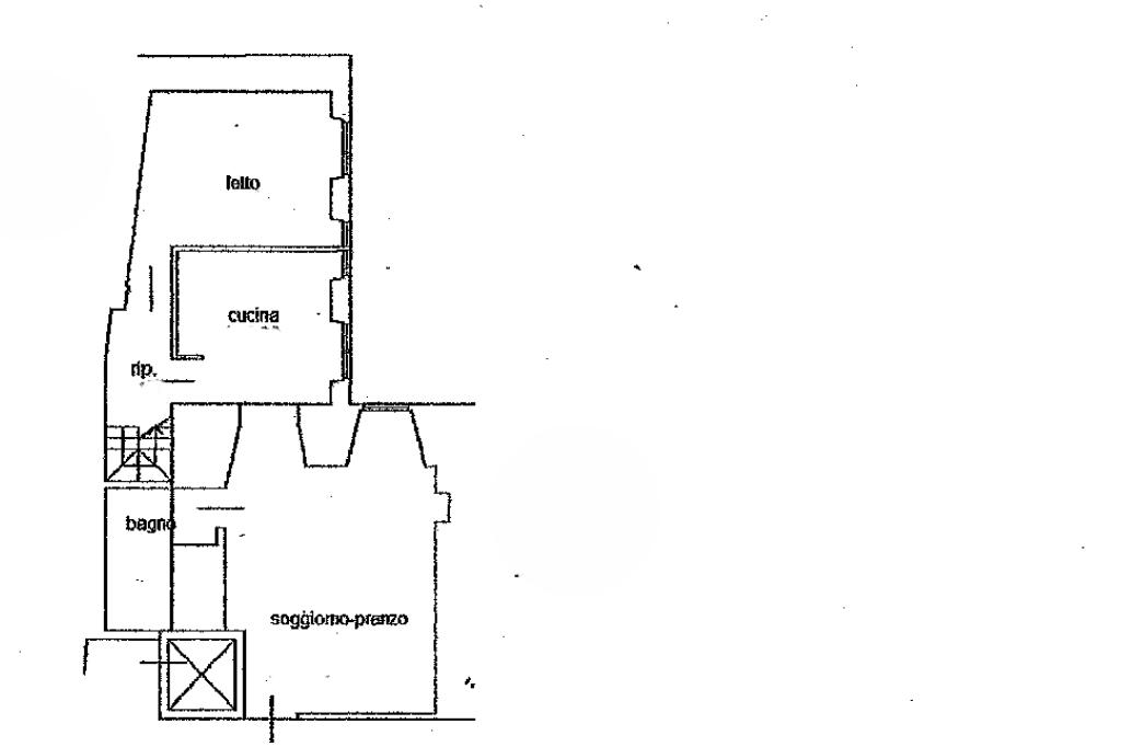
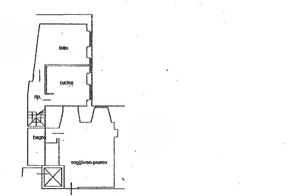
Nel cuore storico di Giulianova Paese, all'interno di un prestigioso palazzo ottocentesco interamente restaurato sia internamente che esternamente, proponiamo una residenza di 155 mq che ridefinisce il concetto di abitare di lusso.

La proprietà, servita da un moderno ascensore, si distingue per un ingresso monumentale caratterizzato da una scenografica scala in marmo e ferro in stile 'New York Loft', un elemento architettonico d’impatto che accoglie gli ospiti con carattere e modernità.


Varcata la soglia, la zona giorno si apre in tutta la sua solennità: un ampio salone impreziosito da un affresco, che dialoga con la luce naturale e con pavimenti in marmo.

Il piano terra si completa con una cucina abitabile spaziosa, una camera matrimoniale di generose dimensioni e un primo servizio rifinito con materiali d’eccellenza.


Il passaggio all'area più riservata della casa avviene tramite una raffinata scala in legno, che conduce al piano superiore dedicato al riposo. Qui, il calore del parquet avvolge le due ulteriori camere matrimoniali e il secondo bagno in mosaico, creando un’atmosfera di assoluta intimità.

Ogni dettaglio tecnico è stato curato per garantire il massimo benessere: dal comfort del riscaldamento a pavimento alla solidità degli infissi e delle porte interne in rovere massello, fino alla sicurezza garantita da porta blindata e videocitofono.


A completare questa proposta esclusiva troviamo un comodo fondaco attrezzato con lavandino.


Un'opportunità dinamica: Per chi necessitasse di spazi ancora più ampi o desiderasse investire nell'intero complesso, vi è la possibilità, su richiesta, di valutare l'acquisto di immobili di metratura superiore all'interno dello stesso stabile.

Una soluzione versatile, capace di adattarsi alle esigenze più ambiziose, in uno dei contesti più affascinanti della città.

Contattaci per fissare una visita e lasciati conquistare da questa proposta.

Presso la nostra agenzia è possibile inoltre, grazie alla consulenza del credito Kiron, accedere a servizi e prodotti come:
- Mutui acquisto prima o seconda casa
- Mutui ristrutturazione
- Sostituzione del mutuo attuale con uno a
condizioni più vantaggiose.

Per maggiori dettagli o per fissare un appuntamento per una visita gratuita, non esitate a contattarci.

Seguiteci su Facebook Agenzia Tecnorete Giulianova, su Instagram tecnorete Giulianova

Mostra tutto

Nelle vicinanze

Trasporto pubblico Trasporto pubblico
stazione di Giulianova
stazione di Giulianova
860 m
Trasporto pubblico
830 m
Ricariche auto elettriche Ricariche auto elettriche
Hotel 900
1,1 Km
Scuole Scuole
Scuola Elementare "E. De Amicis"
170 m
Scuola Media V. Bindi
730 m
ITT "Vincenzo Cerulli"
1,1 Km
Scuole
1,5 Km
Farmacia Farmacia
Farmacia Del Leone - Valore Salute
350 m
Ospedali Ospedali
Ospedali
700 m
Ospedale Maria SS. dello Splendore
810 m
Supermercati Supermercati
Si! Con Te
950 m
Lidl
1,4 Km
Conad
1,7 Km
Supermercati
2,7 Km
Negozi Negozi
Dap Store Abbigliamento
1,0 Km
Globo
1,3 Km
Bar Bar
Caffé Marcozzi
260 m
Caffè dello Splendore
890 m
Las Vegas
960 m
Hera Hora
1,0 Km
Iguana Café
1,0 Km
Ristoranti Ristoranti
Osteria Bracenova
190 m
Orologio
240 m
Ristorante Pizzeria Bellavista
430 m
Self Service Del Corso
1,1 Km
Sapori del Corso
1,1 Km
Mostra tutto

Caratteristiche

Rif.:
61193588
Piano:
1 con ascensore (Piano su più livelli)
Camere da letto:
3
Arredamento:
Assente
Condizionamento:
Predisposizione impianto
Ascensore:
Mostra tutto
Prezzo Prezzo
€ 279.000
Rata mutuo Rata mutuo
€ 1.325 / mese
Spese annue Spese annue
€ 0
Proponi il tuo prezzoProponi il tuo prezzo

Classe Energetica

E
E
E
E
E
E
E
E
E
EP globale non rinnovabile:
159.54 kW h/m² anno
EP globale rinnovabile:
159.40 kW h/m² anno
EP invernale del fabbricato:
EP estiva del fabbricato:
Anno di costruzione:
2004
Riscaldamento:
Autonomo
Tipo impianto:
A pavimento
Tipo alimentazione:
Metano

Ti interessa visionare l'immobile?

Fissa un appuntamento  Fissa un appuntamento

Richiedi informazioni

Clicca su Leggi per aprire l'informativa
* Questi campi sono obbligatori

Calcola il tuo mutuo

Semplice e senza impegno
Anticipo

( % )
Mutuo

( % )

pochi semplici passi

inserisci i tuoi dati
Questionario completato
Grazie per aver richiesto un appuntamento senza impegno con un nostro Consulente del Credito e Assicurativo.

Hai inserito correttamente tutti i dati necessari e a breve riceverai una e-mail con un link da convalidare per inviare i tuoi dati.
Affiliato
Studio Giulianova Srl
Lung. Zara, 47 64021 Giulianova (TE)

Il nostro staff


  • Simona Camplese
    Coordinatrice

  • Nicola Angelo Costa
    Affiliato

  • Daniel Morè
    Responsabile
Lung. Zara, 47 64021 Giulianova (TE)
Zona: Giulianova
Mostra su mappa
Orari: Dal lunedì al sabato 09:00 - 13:00 e 15:00 - 19:30. Domenica su appuntamento.
Affiliato
Studio Giulianova Srl
Lung. Zara, 47 64021 Giulianova (TE)

2026 Tecnocasa Franchising S.p.A. - P. IVA 08365160152 - Via Monte Bianco 60/A 20089 Rozzano (MI). Ogni agenzia ha un proprio titolare ed è autonoma. Privacy policy | Policy utilizzo | Cookie policy