Quadrilocale in vendita

Giulianova, Via Grado - Giulianova Lido
€ 210.000
4 locali 4 locali
84 Mq 84 Mq
1 bagno 1 bagno

Quadrilocale in vendita

Giulianova, Via Grado - Giulianova Lido

Descrizione annuncio

Per acquistare questo immobile devi vendere il tuo? Chiamaci per una valutazione gratuita.

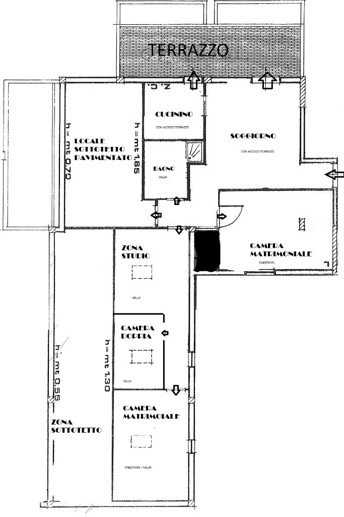
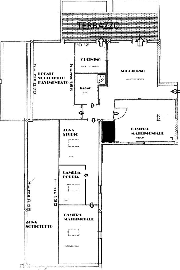
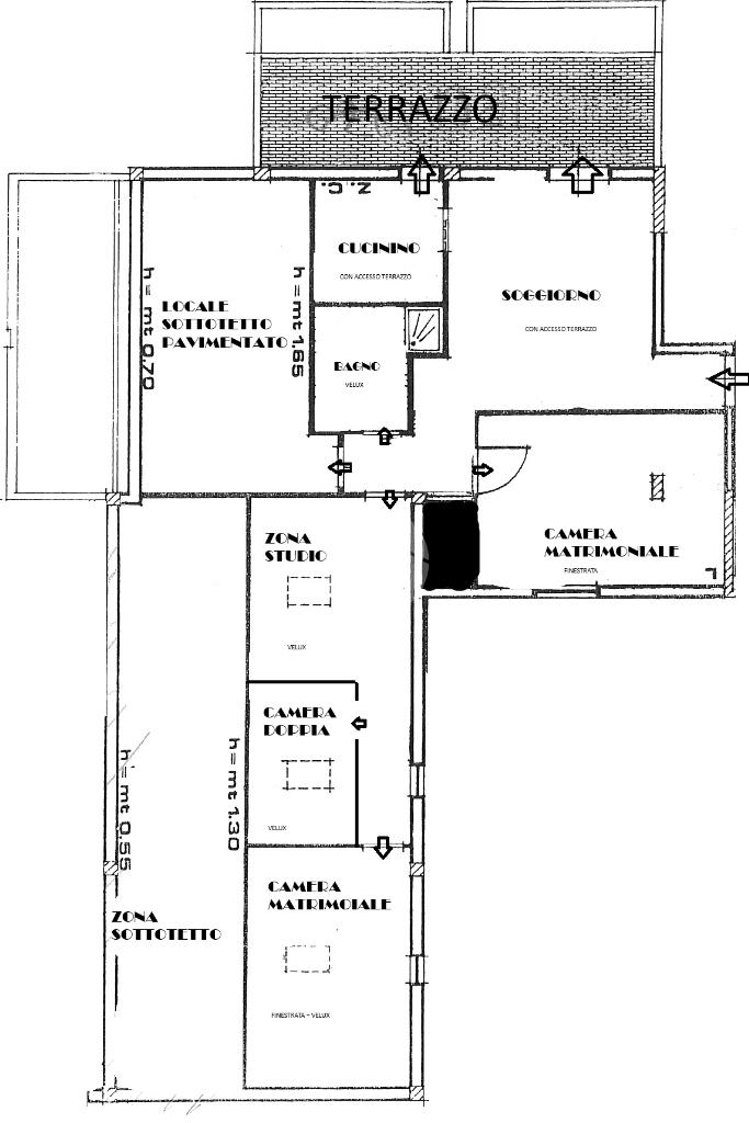
Giulianova Lido – Zona Centrale – Ampio Appartamento Mansardato con Terrazzo

Nel cuore di Giulianova Lido, precisamente in Via Grado, proponiamo in vendita appartamento mansardato situato al terzo piano di una palazzina tranquilla e ben posizionata. L’immobile gode di una favorevole esposizione su tre lati: nord, sud e ovest, che garantisce una piacevole luminosità naturale durante tutto il giorno.

L’ingresso si apre su un grande soggiorno, luminoso e accogliente, con accesso diretto al terrazzo, perfetto per trascorrere momenti di relax all’aperto. La cucina è separata e ben organizzata. Un disimpegno conduce alla zona notte, composta da due spaziose camere matrimoniali, una camera singola e un piccolo studio, ideale per chi lavora da casa o ha bisogno di uno spazio in più. Il bagno è finestrato e dotato di box doccia.

Completa la proprietà un comodo posto auto scoperto all’interno dell’area condominiale.

L’appartamento rappresenta una soluzione ideale per chi desidera vivere in una zona centrale, ben servita e a pochi passi dal mare, senza rinunciare alla comodità di ambienti ampi e ben distribuiti.

Contattaci per maggiori informazioni o per fissare una visita.

Presso la nostra agenzia è possibile inoltre, grazie alla consulenza del credito Kiron, accedere a servizi e prodotti come:
- Mutui acquisto prima o seconda casa
- Mutui ristrutturazione
- Sostituzione del mutuo attuale con uno a
condizioni più vantaggiose.

Per maggiori dettagli o per fissare un appuntamento per una visita gratuita, non esitate a contattarci.

Seguiteci su Facebook Agenzia Tecnorete Giulianova, su Instagram tecnorete Giulianova

Mostra tutto

Nelle vicinanze

Trasporto pubblico Trasporto pubblico
stazione di Giulianova
stazione di Giulianova
560 m
Trasporto pubblico
1,3 Km
Ricariche auto elettriche Ricariche auto elettriche
Hotel 900
370 m
Scuole Scuole
Scuola Media V. Bindi
270 m
Scuola Elementare "E. De Amicis"
860 m
Scuole
1,5 Km
ITT "Vincenzo Cerulli"
1,6 Km
Farmacia Farmacia
Farmacia Del Leone - Valore Salute
860 m
Ospedali Ospedali
Ospedale Maria SS. dello Splendore
1,2 Km
Ospedali
1,2 Km
Supermercati Supermercati
Si! Con Te
320 m
Conad
1,7 Km
Lidl
1,7 Km
Supermercati
2,9 Km
Negozi Negozi
Dap Store Abbigliamento
260 m
Globo
870 m
Bar Bar
Hera Hora
230 m
Las Vegas
410 m
Iguana Café
440 m
Gran Caffé Del Corso
450 m
Caffé Marcozzi
770 m
Ristoranti Ristoranti
La gradisca
270 m
Pane e vino
390 m
Ristorante Caprice
400 m
Sapori del Corso
440 m
Self Service Del Corso
460 m
Mostra tutto

Caratteristiche

Rif.:
61110668
Piano:
3 di 3 con ascensore (Piano alto)
Posti auto:
1
Terrazzi:
1
Camere da letto:
3
Arredamento:
Completo
Mostra tutto
Prezzo Prezzo
€ 210.000
Rata mutuo Rata mutuo
€ 971 / mese
Spese annue Spese annue
€ 700
Proponi il tuo prezzoProponi il tuo prezzo
Immobile valutato con TecnoValore

Classe Energetica

C
C
C
C
C
C
C
C
C
EP globale non rinnovabile:
60.00 kW h/m² anno
EP globale rinnovabile:
60.00 kW h/m² anno
EP invernale del fabbricato:
EP estiva del fabbricato:
Anno di costruzione:
1980
Riscaldamento:
Autonomo
Tipo impianto:
A radiatori
Tipo alimentazione:
Metano

Ti interessa visionare l'immobile?

Fissa un appuntamento  Fissa un appuntamento

Richiedi informazioni

* Questi campi sono obbligatori

Calcola il tuo mutuo

Semplice e senza impegno
Anticipo

( % )
Mutuo

( % )

pochi semplici passi

inserisci i tuoi dati
Questionario completato
Grazie per aver richiesto un appuntamento senza impegno con un nostro Consulente del Credito e Assicurativo.

Hai inserito correttamente tutti i dati necessari e a breve riceverai una e-mail con un link da convalidare per inviare i tuoi dati.
Affiliato
Studio Giulianova Srl
Lung. Zara, 47 64021 Giulianova (TE)

Il nostro staff


  • Simona Camplese
    Coordinatrice

  • Nicola Angelo Costa
    Affiliato

  • Giulia Catelli
    Collaboratrice

  • Daniel Morè
    Responsabile
Lung. Zara, 47 64021 Giulianova (TE)
Zona: Giulianova
Mostra su mappa
Orari: Dal lunedì al sabato 09:00 - 13:00 e 15:00 - 19:30. Domenica su appuntamento.
Affiliato
Studio Giulianova Srl
Lung. Zara, 47 64021 Giulianova (TE)

2025 Tecnocasa Franchising S.p.A. - P. IVA 08365160152 - Via Monte Bianco 60/A 20089 Rozzano (MI). Ogni agenzia ha un proprio titolare ed è autonoma. Privacy policy | Policy utilizzo | Cookie policy